Resumen
- Actualizado en:
- marzo 3, 2026
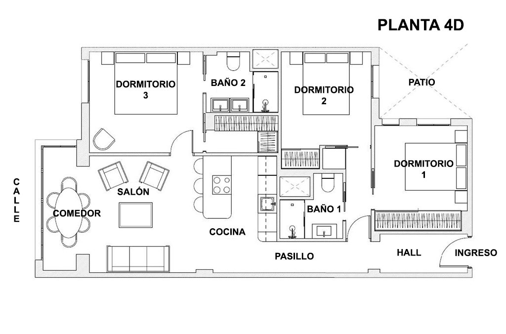
- 3 Dormitorios
- 2 Baños
- No disponible Garajes
- 109 m2
- Año de Construcción: 1960
Ubicado en una cuarta planta, este luminoso piso combina diseño moderno y confort en una de las zonas más cotizadas de la ciudad. La vivienda ha sido reformada íntegramente con materiales de alta calidad y se entrega totalmente amueblada, lista para entrar a vivir, con un estilo cuidado y actual.
Comodidades:
Dispone de 3 amplias habitaciones, ideales tanto para familia como para despacho o invitados, y 2 baños completos con acabados contemporáneos.
La reforma ha potenciado la luz natural y la sensación de amplitud, creando un ambiente acogedor, elegante y funcional.
Situado en plena calle Lagasca, en un entorno privilegiado con todos los servicios, comercios, restauración y excelentes comunicaciones a pocos pasos.
Una vivienda perfecta para quienes buscan ubicación, diseño, comodidad y la ventaja de estar lista desde el primer día.
Gastos de comunidad: 100€ / mes + agua + calefacción
Gastos de IBI: 840€ / año
A+
A
B
C
D
E
F
G
H
Otros Agentes






































































































