Resumen
- Actualizado en:
- febrero 12, 2026
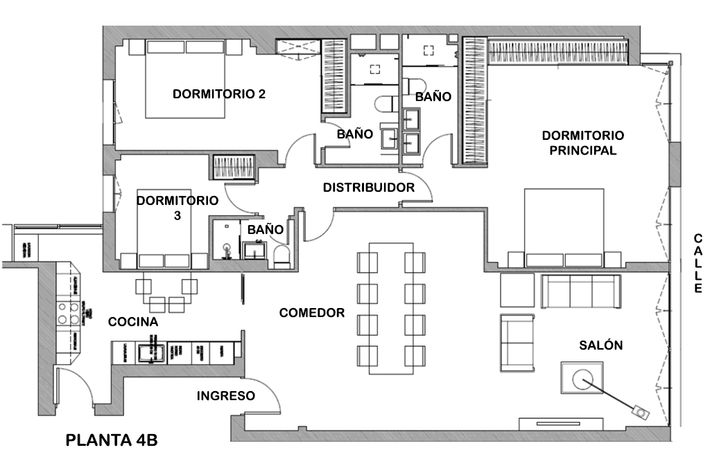
- 3 Dormitorios
- 3 Baños
- 1 Garajes
- 200 m2
- Año de Construcción: 1972
Nuevo piso de 200 m2 muy luminoso al ser orientación sur.
Comodidades:
Salón, comedor y cocina independiente con office. Tanto el salón como el dormitorio principal dan al sur. Tres dormitorios (dos en suite), tres cuartos de baño en total.
Aire Acondicionado por conductos (techo). Calefacción y agua caliente central por contadores.
Trastero y portero físico.
Plaza de garaje en el edificio.
Plaza de garaje en el edificio.
Gastos de IBI: 1.653€ / año
Gastos de comunidad: 223€ / mes
Gastos de comunidad: 223€ / mes
A+
A
B
C
Su clase de energía D
D
E
F
G
H
Ciudad: Madrid
Barrio: Recoletos
Distrito: Salamanca
Código postal: 28001
País: España
Abrir en Google Maps ID de la propiedad: 46751
Precio: 3.200.000 €
Superficie útil: 141 m2
Superficie construída: 200 m2
Habitaciones: 3
Dormitorios: 3
Baños: 3
Clase de Energía: D
Año de Construcción: 1972
Garages: 1
Situación: Orientación Sur
Otras caracteristicas
Aire acondicionado
Amueblado
Armarios empotrados
Ascensor
Calefacción y agua caliente central
Exterior
Orientación SUR
Portero Físico
Trastero
Otros Agentes
12 listados
Montse Santos
Consultora Inmobiliaria
Después de dedicarse durante años a su propia empresa de restauración decidió sumarse a nu ...



















































































