Resumen
- Actualizado en:
- abril 30, 2026
- 4 Dormitorios
- 4.5 Baños
- No disponible Garajes
- 307 m2
- Año de Construcción: 1918
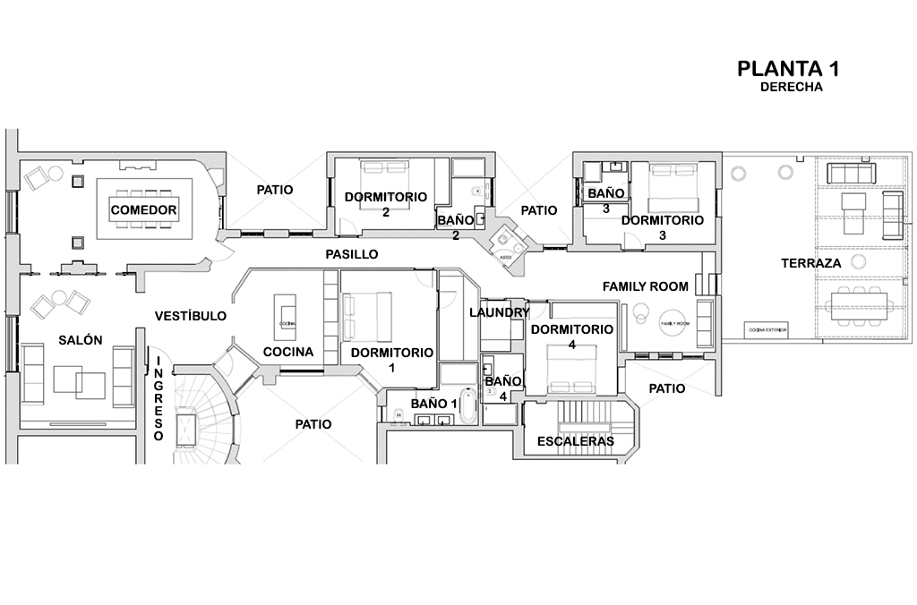
Gran piso reformado y amueblado en finca clásica de 1.918 con una terraza de 55 m2.
Comodidades:
Hall recibidor, salón, comedor, sala de estar y cocina independiente abierta con isla. Aseo de invitados.
Zona de dormitorios: 4 dormitorios en suite, cuarto de lavandería. Terraza de 55 m2. El dormitorio principal tiene un gran vestidor y el baño con bañera y ducha.
Otro de los grandes dormitorios en suite tiene sala de estar privada desde la que se accede a la terraza.
La vivienda tiene trastero y cuenta con portero físico.
Aire acondicionado por conductos y calefacción y agua caliente individuales.
Gastos de comunidad: 222€ + 378€ / mes
Gastos de IBI: exento
A+
A
B
C
D
E
F
G
H
Otros Agentes












































































