Resumen
- Actualizado en:
- abril 20, 2026
- 2 Dormitorios
- 2.5 Baños
- No disponible Garajes
- 165 m2
- Año de Construcción: 1950
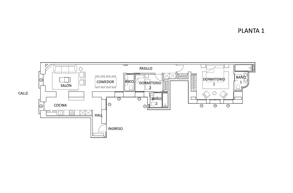
Maravillosa vivienda, totalmente reformada y amueblada, se sitúa en la primera planta de una finca con ascensor en el prestigioso barrio de Almagro, dentro del distrito de Chamberí. Con una superficie aproximada de 148 m², ofrece una distribución funcional y moderna, pensada para brindar comodidad y exclusividad en cada detalle. El inmueble cuenta con dos amplias habitaciones, ambas con baño en suite, además de un aseo de cortesía, lo que garantiza la máxima privacidad y confort. Los espacios sociales, luminosos y de orientación suroeste, permiten disfrutar de una agradable entrada de luz natural durante gran parte del día, creando un ambiente cálido y acogedor. La finca dispone de servicio de conserjería, lo que aporta un plus de seguridad y comodidad a los residentes. Su ubicación en Almagro, una de las zonas más exclusivas y residenciales de Madrid, combina la tranquilidad de un barrio clásico con la cercanía a comercios, restaurantes y servicios, convirtiéndola en una opción ideal para quienes buscan una residencia sofisticada en pleno corazón de la capital.
A+
A
B
C
D
E
F
G
H
Otros Agentes












































































