Resumen
- Actualizado en:
- marzo 20, 2026
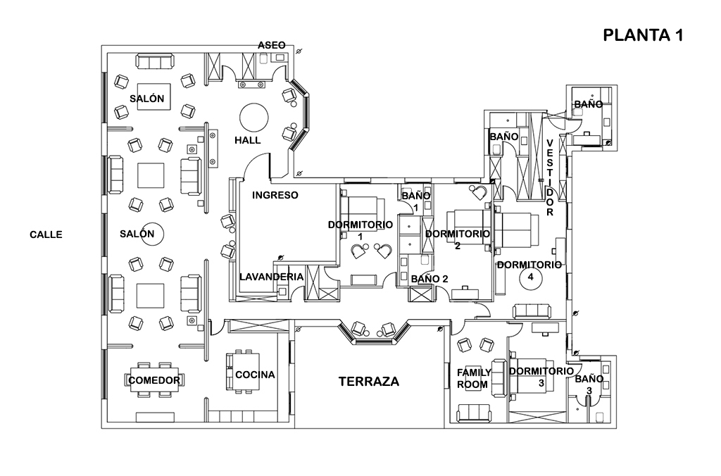
- 4 Dormitorios
- 4.5 Baños
- No disponible Garajes
- 451 m2
- Año de Construcción: 1932
En pleno corazón del Barrio de Salamanca, una de las zonas más exclusivas y demandadas de Madrid. Situado a escasos metros de la calle Ortega y Gasset, epicentro del lujo y las mejores firmas internacionales, goza de una ubicación privilegiada rodeada de los comercios, restaurantes y servicios más exclusivos de la capital.
La vivienda se encuentra en uno de los edificios más representativos de estilo art déco en Madrid. Diseñado por el prestigioso arquitecto José Yarnoz Larrosa, autor de la ampliación del Banco de España de Madrid y de las sedes del Banco de España de Pamplona y Huelva, este inmueble destaca por su carácter señorial, su cuidada estética y su singularidad arquitectónica, convirtiéndose en una pieza única dentro del patrimonio residencial de la ciudad.
Ubicado en una primera planta con altura de segundo, el piso disfruta de unas espectaculares vistas abiertas a la Embajada de Italia, aportando una extraordinaria sensación de amplitud, luz y privacidad.
Comodidades:
Integralmente reformado de diseño, cuenta con 451 metros cuadrados distribuidos en tres elegantes zonas de salones, un amplio comedor, cocina semi-integrada y cuatro dormitorios en suite, destacando el principal con dos vestidores y dos baños. Uno de los grandes protagonistas de la vivienda es su impresionante terraza ajardinada de 43 m², un espacio único y poco habitual en la zona, ideal para disfrutar al aire libre en un entorno de absoluta tranquilidad. A ella se accede desde un acogedor family room, que además puede destinarse como quinto dormitorio si se desea. La vivienda se completa con lavandería y aseo de cortesía.El piso, completamente a estrenar, se entrega totalmente amueblado y equipado, con calidades de primer nivel y una cuidada selección de materiales y acabados que refuerzan su carácter exclusivo.
Su arquitectura, sus vistas, su extraordinaria terraza y su ubicación en una de las mejores zonas de Madrid convierten este inmueble en una OPORTUNIDAD ÚNICA.
Gastos de comunidad: 940€/ mes
Gastos de IBI: 3.390€ / año
A+
A
B
C
D
E
F
G
H
Otros Agentes







































































